location
- Serengeti Golf Estate
year
- 2022
upside down house
category
- Residential
client
- pvt
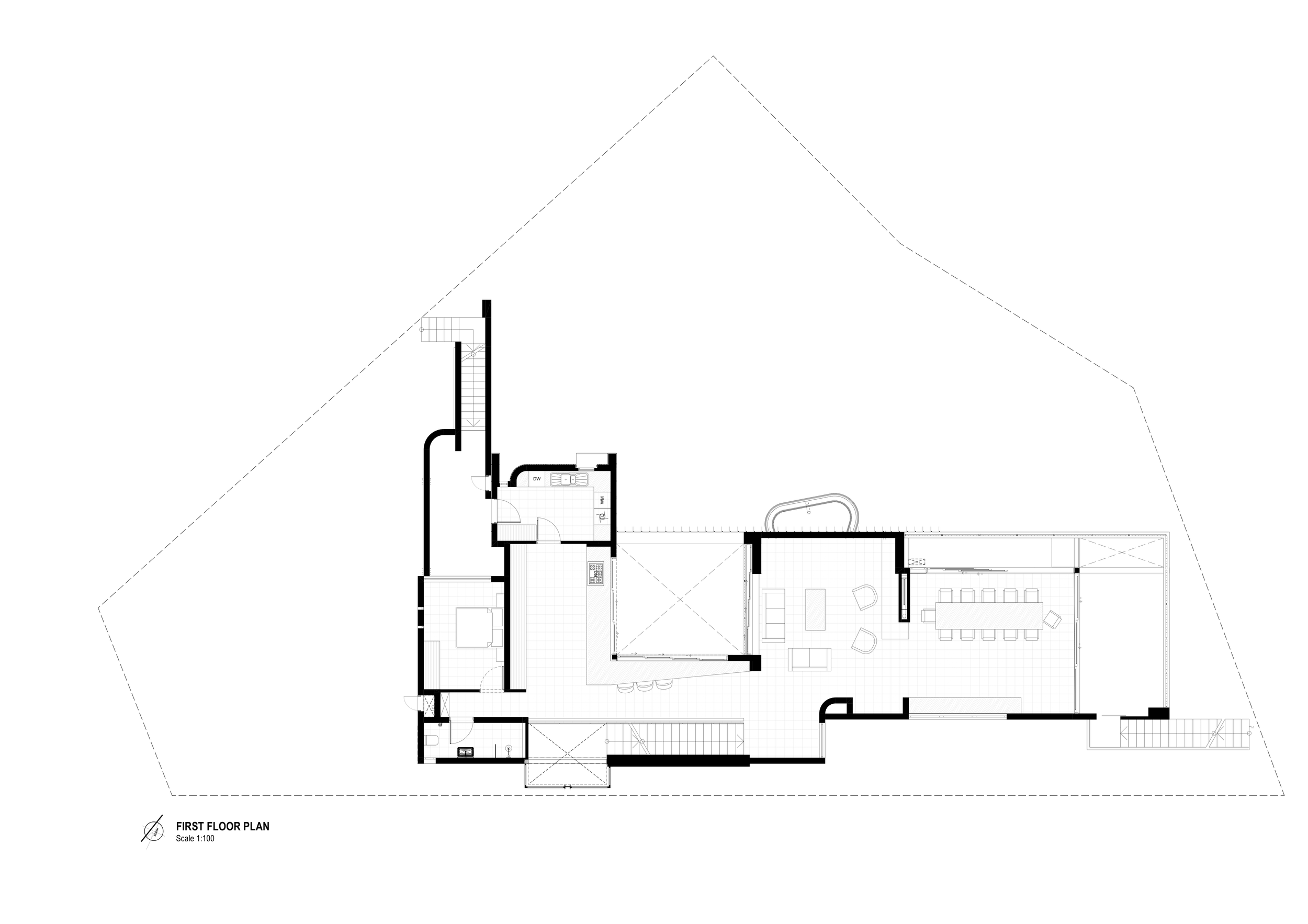
The design seeks to strike a delicate balance between privacy and expansive views, with bedrooms nestled below and living areas elevated above to capture the essence of panoramic vistas. Encompassing four bedrooms, generously sized living spaces, three garages, a distinctive tree centerpiece, and a tranquil patio overlooking the verdant golf course, this residence epitomizes architectural excellence within the vibrant Serengeti estate.
In perfect harmony with its natural surroundings, the architectural concept for this home arises from the client's aspiration to fully immerse themselves in the breathtaking vistas of the landscape.

